
Current Situation
As anyone familiar with Thorverton Cricket Club will know, we have long outgrown it’s small and increasingly ageing pavilion. The current structure was built in 1963, hauled from the club’s previous ground in the neighbouring field in 1972 to where it is today. The current woodworm-ridden pavilion has been extended multiple times, but as the club has grown from a couple of men’s teams at the turn of the century to accommodate three open age Saturday league sides, a growing women’s section and thriving youth section, the need for a replacement pavilion is clear.
Despite several improvements over the past few years to our ground and facilities, the current ageing structure with woodworm and inefficient energy consumption also provides the following challenges:-
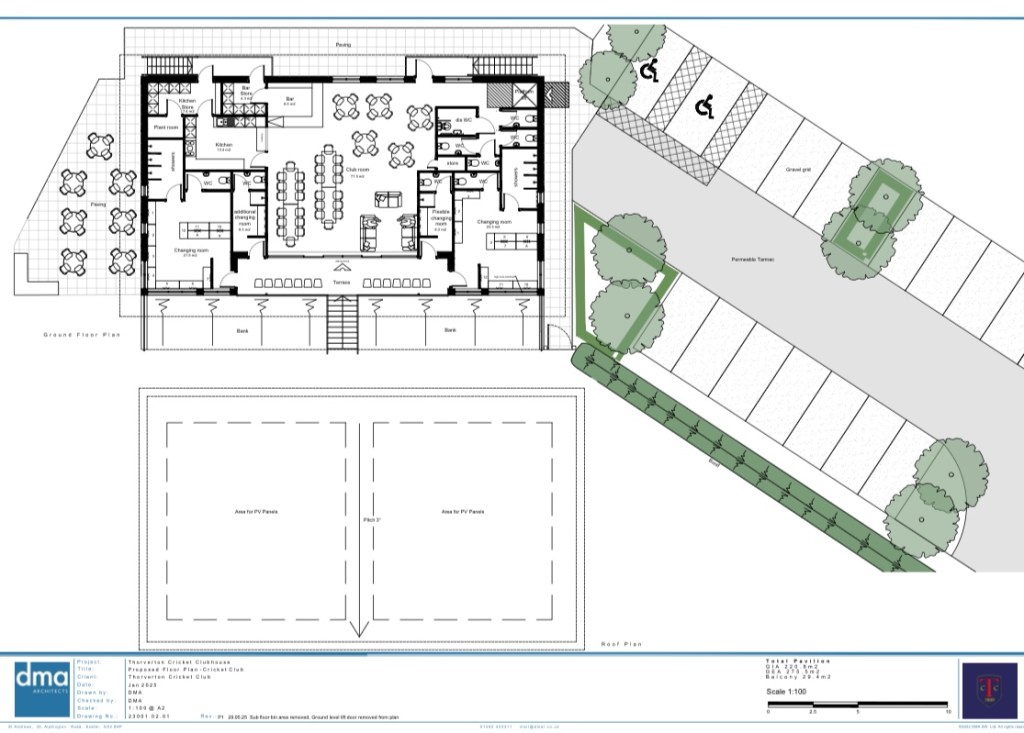
- Two permanent changing rooms far smaller than the ECB recommended size that struggle to fit two teams.
- Minimal alternative changing options
- No disabled access
- Only 2 communal shower heads
- Small and dated male toilets linked to the changing space
- Small social space
- Services – currently just use a septic tank with no specific rainwater drainage.
- Limited parking

A new pavilion would not only improve facilities for members & players but be an asset to the whole community. Currently the pavilion is unusable during the off-season due to a lack of heating.
Following ECB recommendations the new pavilion would include larger changing rooms, flexible and officials changing rooms, increased social space, an integrated scorers area and disabled access/WC. A first draft of a floor plan can be seen below. Furthermore the pavilion would look to improve the viewing of cricket for spectators from inside the building as well as from around the ground.
Sustainability will also be a priority with rainwater harvesting, solar panels and heat source pumps all being discussed.

Progress on Project
Following the freehold purchase of the ground to safeguard the clubs long-term future, a pavilion subcommittee, including club committee members, local experts and willing volunteers was set up by the club in 2022 with a view to achieving the monumental task of bringing the long-held ambition to fruition. As of May 2025, the subcommittee have made the following progress:-
- Consulted members
- Engaged architects
- Completed flood risk assessment
- Completed initial & stage 2 ecology survey
- Completed bio-diversity net gain assessment
- Plans produced, refined and finalised by DMA Architects
- Consulted with England and Wales Cricket Board and TCC members (AGM) on initial plans
- Continued promotion of plans at events and community Big Breakfast
- Planning application submitted to & validated by Mid Devon District Council

The Next Steps
The subcommittee are now working on the next steps, which include
- Further promotion of plans – website, big breakfast, parish council
- Increasing fundraising campaign
- Establishing project costings
- Await planning submission outcome following public consultation
How You Can Help
The main challenge we now face is fundraising the large sum to turn the vision into reality. The pavilion subcommittee will be engaging with the following to raise as much of the project cost as possible:- ECB, Sport England, National Lottery, S106, councils & local trusts and charities.
We do have the following ways in which you can help us with our project:-
Support Planning Application – Please write a letter of support to MDDC to support our planning application HERE.
Sponsorship – More details on becoming a club sponsor can be found HERE.
Easy-fundraising – Raise money for the club every time you shop online. Visit our easy-fundraising site HERE.
Donations – Anyone wishing to make a donation to the club can do so by using the following bank details:-
Thorverton Cricket Club
01257512
30-93-14
Also, if you have knowledge or expertise that could assist the pavilion sub-committee, please Get In Touch.
